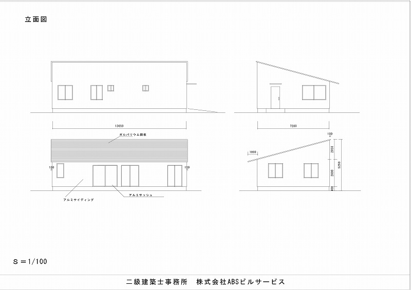
本日は午前中作業を行い、午後は外出予定がありませんでしたので、上尾市で行う改装工事の図面作成を中心に作業しました。
ラフ案ではありますが、位置図・立面図・平面図・矩計図と一気に作成しました。
長時間集中で頭が痛くなりました。(図面掲載はお客様のご了承をいただいております。)

★★★★★★★★★★★★★★★★★★★★★★★★★★★★★★★★★★★★★★★★★★★★
一戸建て、マンション、オフィス、店舗のリフォーム・リノベーション専門 ABSビルサービス
【板橋区・練馬区・杉並区・中野区・世田谷区・目黒区・豊島区・さいたま市・上尾市】
二級建築士事務所 埼玉県知事(2)第11476号
建設業登録事業者 埼玉県知事(般)第78885号
株式会社ABSビルサービス
埼玉OFFICE : 〒338-0002 埼玉県さいたま市中央区下落合5-10-5
東京OFFICE : 〒173-0004 東京都板橋区板橋1-25-6
上尾OFFICE : 〒362-0025上尾市上尾下658-15
tel 048-711-6938 / fax 03-6701-7511
★★★★★★★★★★★★★★★★★★★★★★★★★★★★★★★★★★★★★★★★★★★★
住まいづくりに関することでしたら、どのようなお悩みでも問題ございません。
まずはお気軽にお問い合わせください。